物件詳細情報
売買 分譲地/インプレイスタウン六田 全39区画
- 価格
- 5,511,732~10,441,332円
- 交通
- JRさくらんぼ東根駅 1.6㎞
- 坪単価
- 9~13.8万円/坪
- 所在地
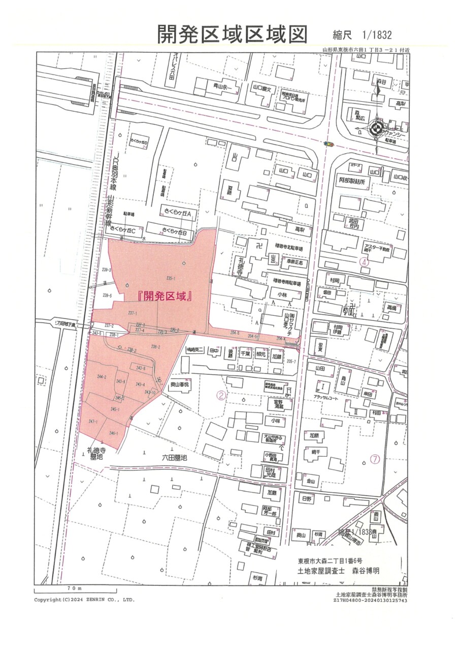
- 東根市六田一丁目地内
- 敷地面積
- 158.44~383.52㎡(47.93~116.01坪)
- 地目
- 宅地
- 接道
- 添付図面をご参照ください
- 権利
- 所有権
- その他
- ・開発許可番号:第1367号 ・詳細につきましてはお問合せください
物件概要
- 市街化区域
- 非線引き区域
- 用途地域
- 第一種住居地域
- 建ぺい率
- 60%
- 容積率
- 200%
- 水道
- 引込予定
- 排水
- 引込予定
- 雨水
- 浸透式
- 現状
- 造成中
- 引渡日
- 令和8年4月頃予定(工事、申請等の影響によって前後します)
- 取引態様
- 売主
- 周辺環境
- 住宅地
- 情報登録日
- 2025/12/6
※図面及び写真が現況と相違する場合は、現況優先とさせていただきます。
※当サイトでは掲載情報に厳重なチェックを心がけておりますが、万が一記載ミスが生じた場合、予めご容赦下さい。



